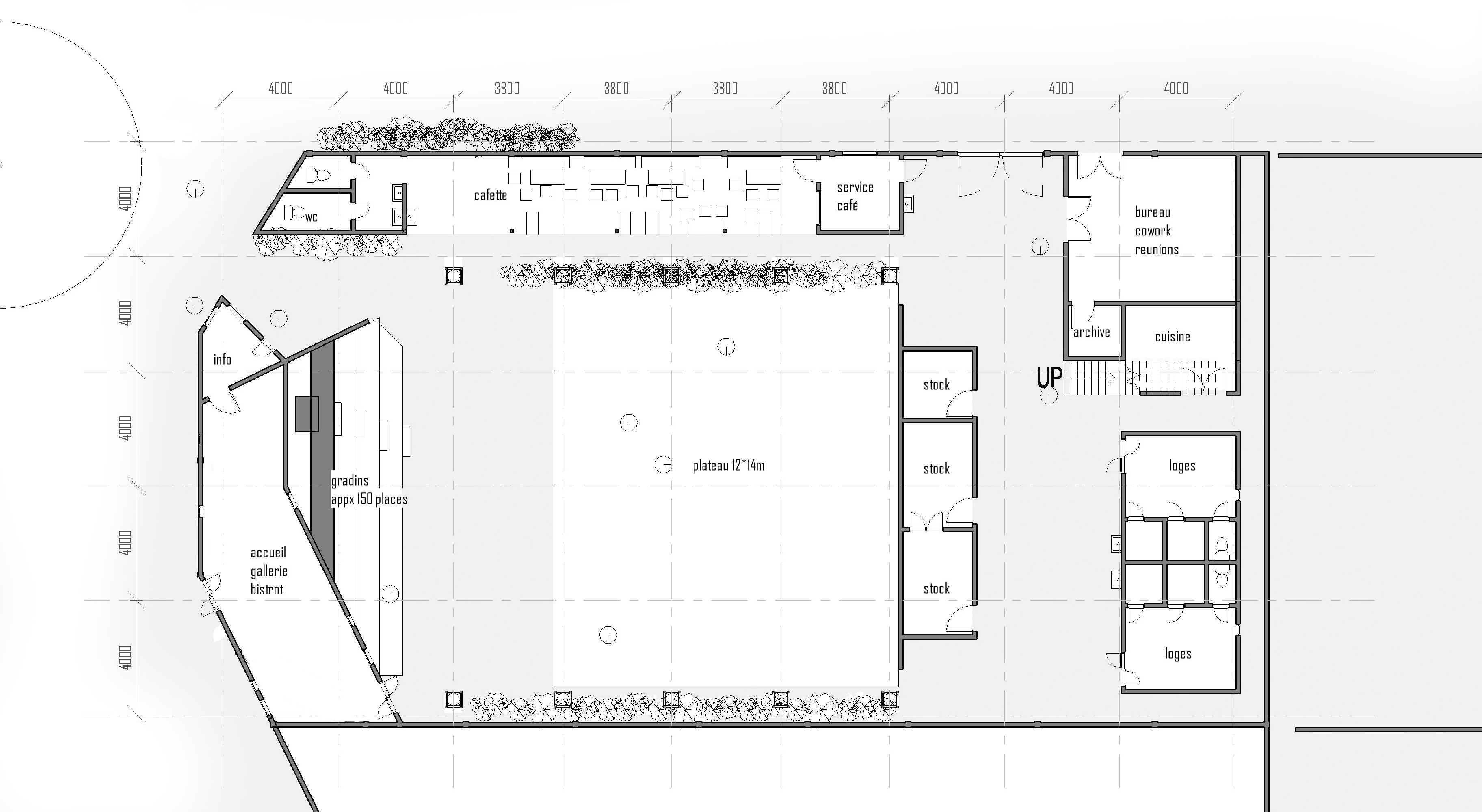
p09 – Floor Plan – Niv 1 SHARE THIS IDEA: Share on Facebook (Opens in new window) Facebook Share on X (Opens in new window) X Like Loading...