After a successful reception of JUMPHUB by the local creative community and its integration into the cultural network of Ouagadougou, the collective JUMP with their associated artists and architecture studio unlimitedJCA decided to build a house, Maison K, to host invited artists and cultural practitioners. Hidden from the street view, behind the Jumphub building, a limited plot was chosen in a private courtyard inhabited by a modest family. The intention was to set the Maison K to the edges of the parcel, behind the mango tree, not to overfill the space, but to create various discrete spots with the building volume and to define a central green common space around a shared waterpoint.
The pandemic reduced artistic mobility and slowed down the initiative. That´s why the interior of the Maison K was redesigned for a long-term stay of local artists. The objective was to find a balance between elaborated aesthetics and local material engagement to create a custom-made residential workspace, a necessary background for those with unconventional lifestyle and specific requirements of space and light.
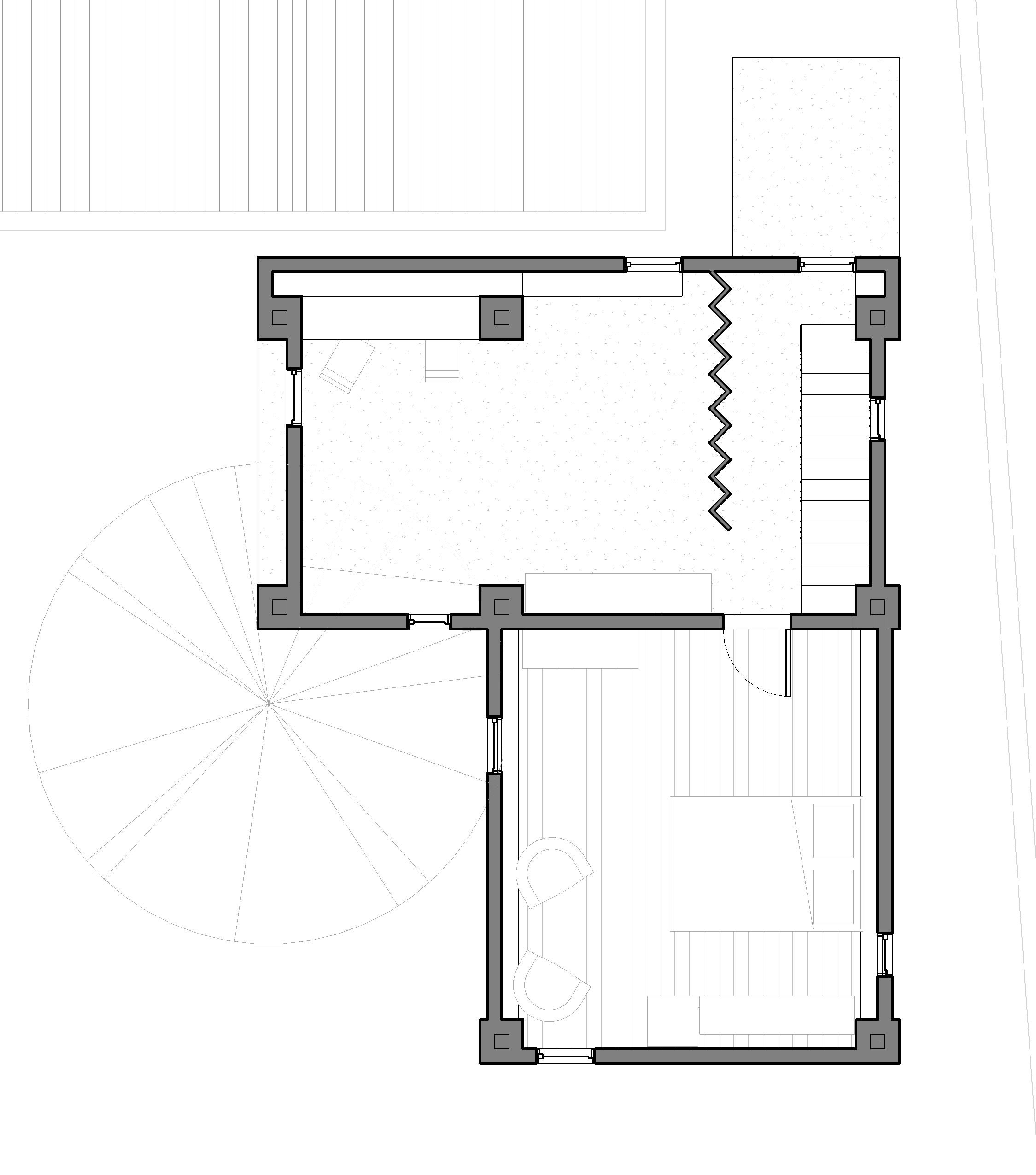
The ground floor is conceived as a social space starting from the outdoor terrasse continuing to the kitchen separated from the upper private atelier and sleeping room, free from distractions. The upper floor is connected with the ground floor and courtyard through a staircase void and through generous windows that bring an abundant bath of natural daylight. The bedroom ambiance is defined by dim light as the west façade is protected from the heat with a full-grown mango tree. The roof terrasses are accessible via ladder for any open-air activities like dance or yoga routines or overnight sleeping during hot Sahelian nights when the temperature doesn’t fall under 30 °C.
Cozy, discrete and reasonable, the building´s design emphasizes the positive approach of JUMP and unlimitedJCA towards environment, towards regenerative, innovative and respectful architecture. Its vertical form, the integration of vegetation and the choice of local material called BTC (brique de terre compressée = compressed earth bricks) guaranteed no need for air conditioning. Even, the ground floor wall of double width keeps the temperature in the salon 15degrees lower than in exterior.
JUMP encourages the experimentation and creativity. Therefore, unlimitedJCA studio proposed two different slab techniques with raw earth. The vaults supported by metal beams were chosen for one half of the house, and the self-locking earth blocks combined with compression slab for the other. It offers to different shapes of ceilings – flat and vaulted. They were applied as prototypes to try out and to promote their use within the city or further.
The interior is furnished with custom made pieces with accent on local or upcycled materials. The bedroom floor is made of wood used to fixing imported cars in containers. The kitchen is made up with the rest of iron bars for the foundation of the house and paper boxes reinforced with wooden elements. The bathroom sink is local pottery.
The future installation of a solar system will enhance functionality, independence and resilience on a daily basis. The water management of the house is based on an off-grid bathroom – dry toilets serving for fertilizing gardens in proximity.
progress
2019_10______first ideas
2020_08______beginning of the construction
2021_12______ construction completed
2022_12______costume-made interior completed
in photos


























in pictures













© 2023